
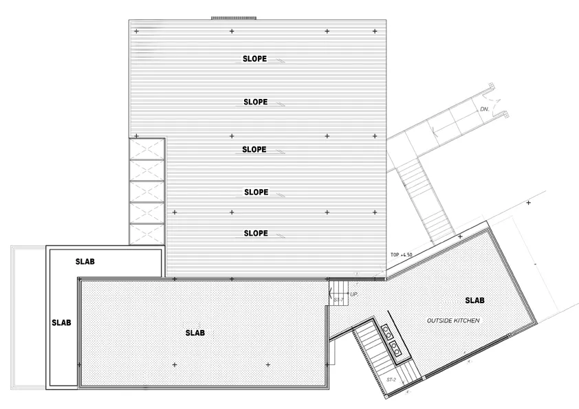
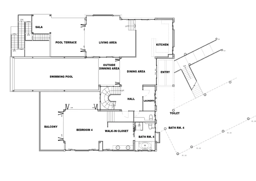
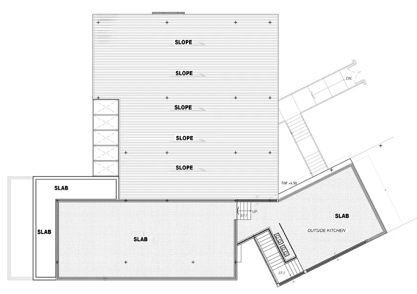
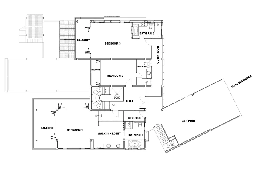
Phuket-Surin-
Refundable security deposit: 10 $
from 970 $ night
Surin is a popular tourist hub in the heart of Phuket's western coast. The area boasts a charming small beach with soft sand, where you can rent umbrellas and lounge chairs. During the season, it tends to get quite busy, and from May to October, it becomes a magnet for surfers. In recent times, Surin has witnessed a blossoming
of infrastructure, welcoming cafes, restaurants, beauty salons, and yoga studios. The district is also renowned for its vibrant nightlife. Surin proves to be an excellent destination for both leisure and residence, and thanks to the steady influx of tourists, investing in real estate in this area can be a wise decision.
